Warning: mkdir(): No space left on device in /www/wwwroot/w1.com/func.php on line 127

Warning: file_put_contents(./cachefile_yuan/dsrongsung.com/cache/0b/7ed2a/6dbf4.html): failed to open stream: No such file or directory in /www/wwwroot/w1.com/func.php on line 115
最佳的商用91免费看黄片设备的配置方法|成都91免费看黄片设备厂文件|四川91免费在线视频观看91免费看黄片设备公司




91免费在线视频观看,91免费看黄片,91免费观看片,91免费视频免费版

最佳的商用91免费看黄片设备的配置方法

发布人: 91免费在线视频观看91免费看黄片设备厂 发布时间:2019.01.15

  由于每个商用91免费看黄片的规模、用餐人数、经营菜系的不同,因此,91免费看黄片对商用91免费看黄片设备的选择上也是极大的不同的。这需要根据91免费看黄片的需求和结构进行合适的配置,这样才能够配置上既能满足自己需要,也不会造成设备浪费的设备。而要做到这点则是需要方法的,下面小编就来和大家一起探讨一下这个问题吧!


  首先、91免费在线视频观看谈谈商用91免费看黄片设备平面的布置原则:


  第一、符合消防卫生环境要求:


  A. 食物及用具制作,存放时应做到生熟分开,脏物与清洁物分开、冷热分开。


  B. 燃油、燃气调压、开关站与操作区分开,并配备相应的消防设施。


  C. 高于300℃管道与易燃物粗距≥0.5M。


  D. 未经净化处理的油烟排气口必须高于附近最高建筑物0.5M。


  第二、应充分利用原有装置、设施、地形,使各分区拥有合理空间,视野开阔,走道畅通方便管理。


  第三、应充分了解用户既定菜式、一切安排、布置均以此为本。


  二、商用工程设计必须掌握的第一手资料:

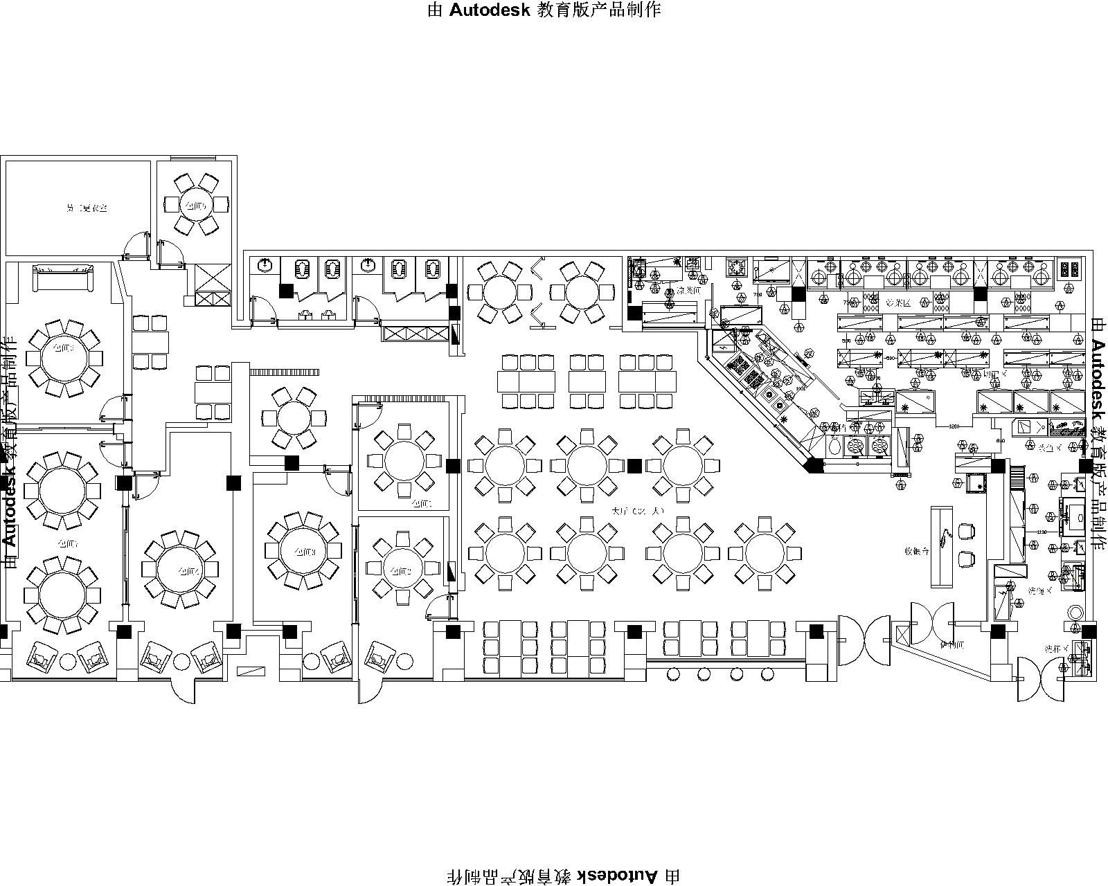
商用91免费看黄片设备布局图

  ① 用户既定菜式和最大进餐人数,这是平面布置设计的主要依据,根据此可确定主要设备、数量、型号。


  ② 用户可供应能源:如锅炉蒸气,柴油,煤气种类,用电(220V/380V)


  ③ 91免费看黄片平面结构、尺寸图及空间高度结构图。


  ④ 用户的基本要求:如管路走向、污水出口、风机定位等。


  为了能够真实的掌握现场的情况,一般情况下都要求工程人员和技术人员到现场去考察,了解现场的情况,这样才能对现场有个清楚的了解,并及时修正图纸上的错误。


  三、商用91免费看黄片设备工作区的划分、功能、主要设备的配置


  A、标准中式餐厅工作区分为:


  (1)热菜加工区:热菜加工间从菜肴类别上可分为炒菜、 炖菜、 海鲜、 煲汤、 烧腊等, 从工序上分为两个加工区:


  配菜区: 刀工根据菜单将净菜进行主料、 配料改刀、 配分、 配伍操作。 主要设备是切配操作台和水池等。 根据需要可选配工作台、 保鲜工作台、 拉门工作台、 冰柜、 货架、 货柜、 碗柜等。


  烹调区: 主要负责将切配好的菜肴主料、 配料进行煎、 炒、 烹、 炸、 煮、 烤等熟制处理,烹饪成菜肴, 打荷出菜。 该区域设备主要是各种炉具、 调料台、 打荷台。


  热菜配菜区与烹调区配合密切, 掌勺厨师随时需要向切配厨师说明需求, 因此, 两个工作区域一般设在一个工作间内。 厨师炒菜时动作比较大, 要有足够的操作空间。 热菜配菜区与热菜烹调区之间, 也就是墩台与打荷台中间设传菜通道。 传送切配好的菜肴主料、 配料给掌勺的厨师, 并将出锅成品传送到备餐间或餐桌。


  (2)粗加工区:其功能是摘去菜叶、根、茎情况,鱼肉开生、初加工处理。这个地方需要配置的商用91免费看黄片设备包括:冰柜、切菜机、土豆去皮机、宰杀台、切片机、绞肉机、化冻池。


  (3)精加工配菜区:其功能是将粗加工食物改制,调配适合菜系要求。


  (4)白案区:其功能是面粉类食物调和、压制、工艺拼花、拼盘等。


  (5)冷拼区:其功能是将不经加热可直接食用的食物,开瓶、切制、拼花、拼盘等。


  (6)洗消区:其功能是将餐具进行清洗、消毒、贮藏。


  (7)冷藏库:用于生、熟易变质食物贮存。


  冷藏库又分为冷冻与冷藏库。 外地采购、 受时令季节影响的原料、 处于冰冻状态的原料、 需要储存补充断档的原料都应存放人冷冻区。 需要保鲜的奶蛋原料、 蔬菜水果、 部分海鲜等, 需要迸人冷藏库存放备用。 根据特殊需要, 还可以设专门的分类库房、 肉禽冷冻库、 海鲜冷冻库、 菜果保鲜库、 西餐原料库、 蛋类保鲜库、 奶制品食品库等。


  库房大小和库房功能应依据需要与现有条件设计。 冷库所需要的设备主要是冷冻设备和库


  (8) 仓库区:

  仓库区是用于存放待用的蔬菜、 米面、 调料, 备品的房间. 为了便于加工间随时存取, 库仓库一股在91免费看黄片内就近设置。 为了防止受潮霉变, 串味, 便干存取管理. 可根据条件分别设置副食库、 主食库、 干调库、 备品库。 若91免费看黄片面积有限, 则只能设综合库房。 即使混合存放, 也要分区分类别, 设架、 设柜归类摆放, 防止米面、 调料受潮霉变。


  库房所需要的设备主要是货架、 货柜、 冰柜、冷藏柜。


  2、中式商用91免费看黄片餐厅各分区主要设备的配置:


  操作区: 对于广式91免费看黄片,其菜式烹调工艺有蒸煮、烧腊(烤制)卤味及火炒四种工艺并举,偏重于烧腊和蒸煮,其操作区必备设备有:炒灶、蒸炉、肠粉炉、高汤炉、矮仔炉、烤乳猪炉、烤鸭炉、蒸灶或蒸炉、蒸汽柜。 对于川式91免费看黄片,其菜式烹调工艺主要以爆炒为主,以煨、蒸为辅,其操作区必备设备有:强力鼓风炒灶、煲仔炉、蒸炉或蒸气蒸柜矮仔炉。


  以上几点就是91免费在线视频观看在多年的商用91免费看黄片设备工程项目中总结的经验,希望能够对大家所帮助。

   

 

 本文内容由四川91免费在线视频观看91免费看黄片设备公司提供,部分图片和文字或来自网络,如涉及知识产权请于成都91免费看黄片设备公司91免费在线视频观看联系。如需转载本文,请与有多年商用91免费看黄片工程经验的老牌成都91免费看黄片设备厂91免费在线视频观看网站管理员联系。



 



分享这个产品

产品展示
成功91免费视频免费版

网站地图